Cod. 3205
Villa in vendita a Seravezza
Querceta - Via Alpi Apuane
-
234
mq -
3
Camere -
4
Bagni
€ 1.150.000
Classe energetica: BDescrizione
RIF. 3205 | Seravezza | QUERCETA | VERSILIA | ITALY
ALLE SPALLE DI FORTE DEI MARMI - VERSILPARADISE - MERAVIGLIOSA Villa CON PISCINA
IN ESCLUSIVA : Villa con piscina alle spalle di Forte dei Marmi Open House Luxury su invito.
Alle spalle di Forte dei Marmi, in posizione riservata e strategica, proponiamo meravigliosa Villa di recente costruzione con piscina, immersa nel verde ma vicinissima al mare e a tutti i servizi esclusivi della Versilia.
OPEN HOUSE LUXURY PRIVATO VISITE SOLO SU PRENOTAZIONE
CONTATTACI PER RICEVERE L'INVITO
2324 Gennaio 2026
2627 Febbraio 2026
06- 07 Marzo 2026
LA Villa IDEALE PER CHI CERCA PRIVACY, SPAZIO E QUALITÀQuesta proprietà rappresenta il perfetto equilibrio tra campagna, mare e mondanità.
Un'oasi di tranquillità con oltre 1.700 mq di giardino, impreziosito da 30 ulivi secolari, ideale sia come prima casa che come residenza di pregio per le vacanze.
PROMOZIONE A TEMPO LIMITATOAcquista entro il 31 Marzo 2026 e risparmia € 100.000
Dal 1° Aprile 2026 il prezzo tornerà a € 1.250.000
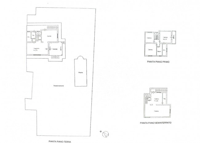
Piano Terra: Ingresso su veranda coperta perfetta per i tuoi pranzi e cene con splendida vista su Piscina e bellissimo giardino 1.700 mq.;
Ampia zona Living Open Space: zona divani relax con camino, zona pranzo e spaziosa cucina in muratura con penisola che si affaccia su gazebo esterno, bagno.
Piano Primo: elegante camera matrimoniale padronale con bagno privato e terrazza con vista su piscina; altre due camere matrimoniali e ulteriore bagno (con predisposizione per idromassaggio).
Taverna: ampio living con camino, cucina, bagno e ripostiglio.
Dotazioni e finiture:
- Impianto fotovoltaico
- Climatizzazione in tutte le stanze
- Impianti a norma Certificati
- Pozzo con acqua potabile
- Due Ingressi
Punti di forza:
- Piscina privata 10X4 con ampio solarium spogliatoio cabina Fortemarmina
- Giardino di 1780 mt con spazi verdi curatissimi
- Ambienti luminosi, ampi e moderni
- Nuova pronta per essere abitata.
- Location strategica: mare, campagna e mondanità in un unico luogo
Per Te che ami vivere la Versilia in ogni sua sfumatura: questa proprietà unisce il fascino della campagna alla vicinanza del mare, con privacy assoluta, immersa nella in un'oasi di verde, ma a due passi dal mare e dai servizi più esclusivi di Forte dei Marmi. Pronta per essere vissuta da subito, aspetta solo Te!
Visite esclusivamente su appuntamento Posti limitati per Open House
CONTATTACI PER RICEVERE L'INVITO
2324 Gennaio 2026
2627 Febbraio 2026
06- 07 Marzo 2026
Patrizia 389 83 44 002
Monia 351 94 26 963
Michele 351 54 29 448
www.forteversilia.it
Caratteristiche
Scopri le caratteristiche di questo immobile
Nelle vicinanze
Servizi e infrastrutture della zona
Ubicazione immobile
Contattami
