villa indipendente in vendita a Montignoso
Montignoso
Zona: Renella - Via Pero, 50
€ 980.000
#381 mq
#5
#5
Cod. 3198

villa indipendente in vendita a Montignoso

Renella - Via Pero, 50

Lusso
  • icon

    381

    mq
  • icon

    5

    Camere
  • icon

    5

    Bagni

€ 980.000

Classe energetica: F

EP glnr: 204.22 kwh/㎡

Descrizione

COD. 3198 | ITALY | TOSCANA | RIVIERA | MASSA | Montignoso |
Importante proprietà vicinissima a Forte dei Marmi e al mare!!!
VILLA HARMONY DI AMPIA METRATURA CON PARCO DI OLTRE 2.200 MQ.

In posizione riservata e tranquilla, a vicina al mare e dalle principali località della Versilia, proponiamo importante villa indipendente di circa 380 mq, libera su quattro lati e circondata da oltre 2.200 mq di parco.
Questa proprietà è ideale per chi sta cercando una villa importante, con ampi spazi reali, privacy e valore solido nel tempo, vicina a Forte dei Marmi, perfetta anche per famiglie numerose o per chi desidera ospitare due nuclei abitativi in totale autonomia.

Descrizione:
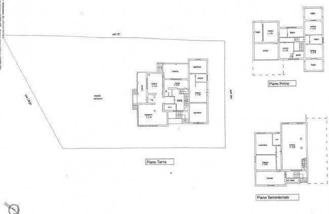
Piano Terra

  • Ingresso con ampio portico
  • Luminoso soggiorno
  • Sala da pranzo
  • Cucina abitabile
  • Veranda pranzabile con forno a legna
  • Bagno completo
Appartamento Indipendente - Ideale per ospiti, famiglia o personale di servizio
  • Ingresso su cucina con zona pranzo e living
  • Camera matrimoniale
  • Bagno
Taverna
  • Triplo accesso (due esterni + uno interno)
  • Soggiorno
  • Zona pranzo
  • Cucina ad angolo in marmo artigianale
  • Tre locali multiuso
  • Bagno completo
Zona Notte
  • 4 camere matrimoniali tutte con terrazzo
  • Bagno completo
  • Suite padronale di circa 40 mq con:
  • Camera matrimoniale
  • Cabina armadio
  • Terrazza vista proprietà
  • Bagno di lusso con vasca e doccia
ESTERNI
  • Ampio giardino pianeggiante
  • Zona relax
  • Spazio attrezzi
  • Possibilità di realizzare piscina

PUNTI DI FORZA
  • AMPIA METRATURA 380 mq
  • 2.200 mq di parco
  • 3 posti auto coperti
  • Lotto piscinabile
  • Ampi spazi
  • prezzo ultra competitivo!!!
  • ideale per famiglie numerose o due nuclei familiari.

Una villa versatile, elegante e pronta ad adattarsi a ogni esigenza, in una delle zone più richieste tra mare e campagna versiliese.


Patrizia 389 83 44 002
Monia 351 94 26 963
  • Michele 351 54 29 448

Caratteristiche

Scopri le caratteristiche di questo immobile

Nelle vicinanze

Servizi e infrastrutture della zona

  • villa indipendente in vendita a Montignoso
  • villa indipendente in vendita a Montignoso
  • villa indipendente in vendita a Montignoso
  • villa indipendente in vendita a Montignoso
  • villa indipendente in vendita a Montignoso
  • villa indipendente in vendita a Montignoso
  • villa indipendente in vendita a Montignoso
  • villa indipendente in vendita a Montignoso
  • villa indipendente in vendita a Montignoso
  • villa indipendente in vendita a Montignoso
  • villa indipendente in vendita a Montignoso
  • villa indipendente in vendita a Montignoso
  • villa indipendente in vendita a Montignoso
  • villa indipendente in vendita a Montignoso
  • villa indipendente in vendita a Montignoso
  • villa indipendente in vendita a Montignoso
  • villa indipendente in vendita a Montignoso
  • villa indipendente in vendita a Montignoso
  • villa indipendente in vendita a Montignoso
  • villa indipendente in vendita a Montignoso
  • villa indipendente in vendita a Montignoso
  • villa indipendente in vendita a Montignoso
  • villa indipendente in vendita a Montignoso
  • villa indipendente in vendita a Montignoso
  • villa indipendente in vendita a Montignoso
  • villa indipendente in vendita a Montignoso
  • villa indipendente in vendita a Montignoso
  • villa indipendente in vendita a Montignoso
  • villa indipendente in vendita a Montignoso
  • villa indipendente in vendita a Montignoso
  • villa indipendente in vendita a Montignoso
  • villa indipendente in vendita a Montignoso
  • villa indipendente in vendita a Montignoso
  • villa indipendente in vendita a Montignoso
  • villa indipendente in vendita a Montignoso
  • villa indipendente in vendita a Montignoso
  • villa indipendente in vendita a Montignoso
  • villa indipendente in vendita a Montignoso
  • villa indipendente in vendita a Montignoso
  • villa indipendente in vendita a Montignoso
  • villa indipendente in vendita a Montignoso
  • villa indipendente in vendita a Montignoso
  • villa indipendente in vendita a Montignoso
  • villa indipendente in vendita a Montignoso
  • villa indipendente in vendita a Montignoso
  • villa indipendente in vendita a Montignoso
  • villa indipendente in vendita a Montignoso
  • villa indipendente in vendita a Montignoso
  • villa indipendente in vendita a Montignoso
  • villa indipendente in vendita a Montignoso
  • villa indipendente in vendita a Montignoso
  • villa indipendente in vendita a Montignoso
  • villa indipendente in vendita a Montignoso
  • villa indipendente in vendita a Montignoso
  • villa indipendente in vendita a Montignoso
  • villa indipendente in vendita a Montignoso
  • villa indipendente in vendita a Montignoso
  • villa indipendente in vendita a Montignoso
  • villa indipendente in vendita a Montignoso
  • villa indipendente in vendita a Montignoso
  • villa indipendente in vendita a Montignoso
  • villa indipendente in vendita a Montignoso
  • villa indipendente in vendita a Montignoso
  • villa indipendente in vendita a Montignoso
  • villa indipendente in vendita a Montignoso
mostra di piùmostra di meno

Ubicazione immobile

Contattaci

Ultimo aggiornamento 27/03/2026

Copyright © 2026 Fortehome Srl - Powered by Gestim

×
Codice
Contratto
Scegli dove cercare
Tipologia - multiscelta
Prezzo


Totale mq


Locali minimi
Bagni minimi
Camere minime
Altre opzioni - multiscelta